Recorridos Virtuales en 2020, ¿aún?
No me cabe uno de esos titulares de los que soy tan amigo, lo resumo como lo he puesto. Pero esta entrada obedece a una reflexión confirmada a su vez por otra entrada en LinkeIn del amigo José Corraliza Miranda, Aecom: los recorridos virtuales nodo a nodo basados en renders 360 siguen siendo una de las herramientas más demandadas de presentación, por increíble que parezca.

Galimatías monumental de 44 equirectangulares en PanoTourPro. Hay que prever todos los movimientos posibles que una visita puede ofrecer.
Da igual estar preparados de sobra para ofrecer interacción plena basada en motores de render en tiempo real de altísima calidad como Unreal Engine o Unity, da lo mismo si agilizas el proceso mediante soluciones más o menos «oneclick» del estilo de Enscape, Twinmotion o Lumion, da igual si ofreces VR con más o menos interacción, da lo mismo si prescribes soluciones de VR colaborativa para evaluación temprana como InsiteVR, Iris Prospect o The Wild: si el cliente final no tiene soporte corporativo en forma de máquinas con prestaciones gráficas elevadas, si aún no le seduce llevar unas Quest a su cliente para presentar las propuestas o si tener reuniones en el metaverso para decidir sobre modelos en desarrollo no forma parte del horizonte de su mirada, no hay nada que hacer.
El caso es que el número de recorridos virtuales que han sido despachados en este estudio desde 2015, siendo un concepto y una tecnología más viejos que un bosque, no ha dejado de crecer. Se ha constituido como la herramienta fundamental de visualización, bastante más allá del video, de los renders tradicionales y muy por encima de interactivos de render en tiempo real.

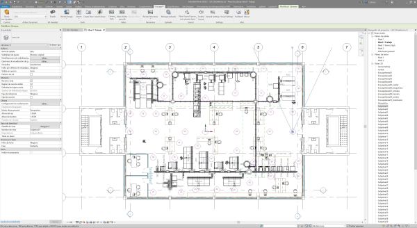
Esquema de la visita en Revit. Una cámara por cada panorama. Una familia de detalle sirve de guía y planificación. ¿Era para esto eso del BIM?
Del render tradicional es que no quiero saber nada, pese a que 3dsMax y Vray Next siguen entre mis herramientas, no son para nada ya las habituales. ¿Ni siquiera para obtener los render 360 para los recorridos? Ni siquiera.
El nivel de calidad exigido queda garantizado de largo tirando los panoramas desde sesiones de Enscape y Revit. PanotourPro, que quedó congelado en esta version 2.5.14 tras la desaparición de Kolor, sigue siendo la herramienta de autoría, y el resultado sigue siendo hospedado en buckets S3 estáticos en AWS. Un poco de Photoshop para la Splash y el esquema de navegación y poco más.
¿Se factura?. Sí. ¿Es lo que más te gusta hacer?. No. Me motivan otros retos, pero quizá llevado por la riada, el hype, de VR desde 2015, del tiempo real, etc., me voy dando cuenta 4 años después que el mercado no está preparado aún para este tipo de soluciones: las grandes corporaciones, conozco más o menos a fondo un par de ellas, se mueven como dinosaurios, paso muy lento, justificando cada movimiento. En algunas ocasiones determinadas se logra realizar algún desarrollo fuera de lo habitual, pero las pocas. Las empresas pequeñas aún peor, no hay cultura más allá del socorrido render, en un 90% de los casos ni la más remota idea de qué hay detrás de la cúpula donde vivió Truman su show gran parte de su vida, esperando a que por fin encuentren todos la puerta que les saque de la caverna del mito. Con estos tiro la toalla, porque encima no pagan lo que vale, y llevo 30 años tirando renders.

Enscape hace un buen trabajo tirando panoramas, aunque necesita hacerlo por lotes. Ya está apuntado el consejo para la próxima versión.
Con lo cual, de 2019 puedo decir que sí, que he despachado recorridos virtuales 360 no sólo en España: Portugal, Reino Unido, Grecia, Israel, Francia, Alemania, Sudáfrica y Australia. No está nada mal y bien que me alegro, pero me gustaría que hubieran sido productos más avanzados a los que he dedicado mucho I+D+i, mucho tiempo, mucho dinero, mucha ilusión y mucho esfuerzo. A final de año queda un sabor agridulce. Me permito terminar con este verso libre heptasílabo que no viene a cuento.
¡Felices Fiestas a tí,
lector perdido que has
perseverado hasta aquí,
heróico o aburrido!
Buen artículo, Santiago, lo suscribo en gran parte.
Aunque a veces nos sintamos un poco como Ryan Gosling en «La La Land», y nos apetezca interpretar una melodía distinta, más elaborada, que nos motiva más (y que sabemos puede ser más gratificante y enriquecedora), el oído del público no está siempre preparado para asimilar nuevas estructuras musicales. Para ti las ventajas son obvias porque conoces el tema a fondo, pero me temo que es imposible apresurar el proceso para el público en general.
Los que ya tenemos una edad, nos acordamos de que cuando llegaron los primeros móviles, a muchos les daba pudor usarlos en público porque pensaban que serían mirados como a lunáticos por la gente que les rodeaba. Algo parecido sigue pasando con los headsets de VR. En nuestras demos habitualmente llevamos una tablet para que puedan ver el mismo contenido, (aunque de una forma notablemente menos espectacular), aquellos reacios a «calzarse» uno de esos aparatos demoníacos que seguramente le harán parecer ridículo. Es una cuestión de tiempo…
Un abrazo.